Skip to main content

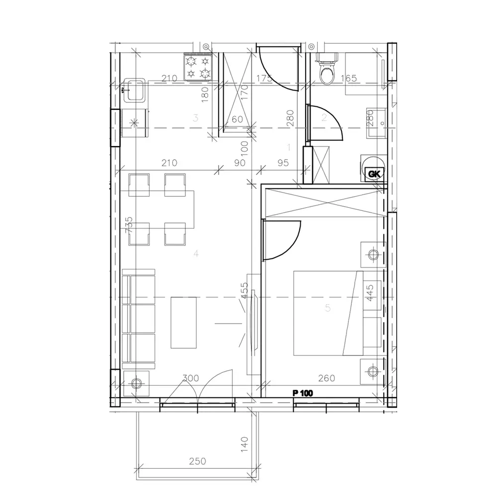
Stan br. 1 | Jednosoban

I SPRAT

44.13 m² / 43.24 m²

STRUKTURA / PROSTORIJE

Stan br. 1

Jednosoban

Rb
prostorija
površina prostorije
1
hodnik
4.03
2
kupatilo
4.61
3
kuhinja
3.78
4
dnevni boravak sa tr.
16.65
5
soba
11.56
6
terasa
3.50

ukupno:

44.13 m² / 43.24 m²

OSNOVA

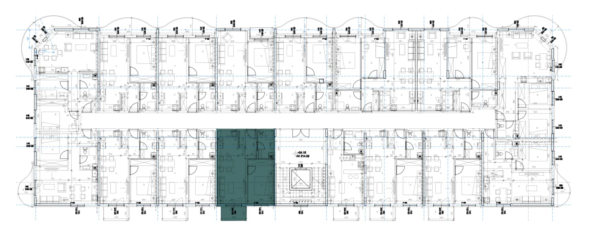
POLOŽAJ STANA

Crteži trodimenzionalnog prikaza i osnove stana su napravljeni u marketinške svrhe. Stvarne dimenzije i površine prikazanih prostorija i stana mogu varirati do 3%.
Nameštaj i oprema enterijera stana nisu predmet prodaje i nisu uračunati u cenu stana.